賃貸物件事業用
- 店舗
重飲食
- [ こだわり条件 ]
- 居抜き / 1フロア1テナント
物件番号011604
青葉通り沿い!角地の好立地物件です!
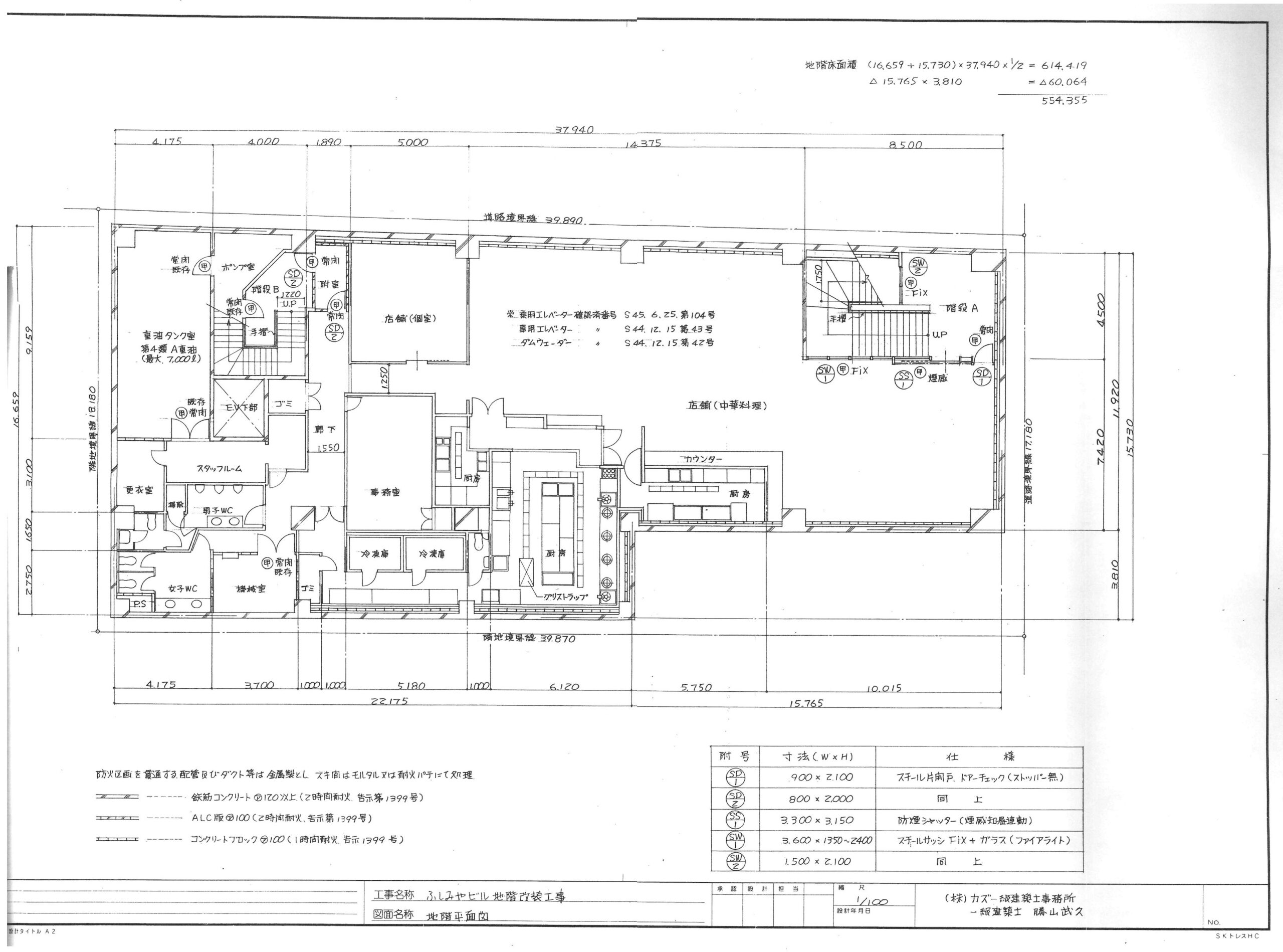
ふしみやビル 地下1階
所在地静岡市葵区呉服町二丁目3-1
合計1,210,000円
賃料1,100,000円
共益費110,000円
物件概要
- 物件番号
- 011604
- 物件名
- ふしみやビル
- 契約区画
- 地下1階
- 所在地
- 静岡市葵区呉服町二丁目3-1
- 最寄り駅
- 静岡鉄道
- 交通
- 徒歩約7分
- 賃貸条件
-
賃 料1,100,000円共益費110,000円合 計1,210,000円敷金6,000,000円(賃料の6ヶ月)礼金無仲介手数料1,100,000円(賃料の1ヶ月+消費税)
- 面積
- 520.67㎡(157.5坪)
- 構造規模
- 鉄骨鉄筋コンクリート造9階建
- 築年月
- 1970年1月
- 駐車場
- 無
- 各戸設備
- 居抜き(飲食店仕様)
- 入居日・引き渡し
- 即
- 備考
- ・設備譲渡無償
※仲介手数料は借主様より頂きます。
※賃貸保証会社加入義務有
向いている業態
飲食
ロケーション
呉服町通り沿い
青葉通り沿い
静岡市役所 徒歩1分
静岡PARCO 徒歩5分
青葉通り沿い
静岡市役所 徒歩1分
静岡PARCO 徒歩5分
静岡市街中の中心地!視認性の高い好立地物件のご紹介です!
場所は青葉通り沿い。
1日を通して利用者が多い公園ですので、幅広い層の集客が見込めます。
_
外観はこちらです。

地下1階の区画ですが、路面に店舗入り口があるので、
お店の存在感はばっちりアピールできます。
_
前テナントは居酒屋として利用されていました。
広さは150坪以上あるので、客席スペースも大胆に活用できます。



_
_

厨房設備は設備を外した状態なので、思い描く厨房に仕上げることが可能です!

また、内装に手をかけたい場合にも弊社にご相談ください。
弊社の建築スタッフも、理想のお店づくりのお手伝いをさせて頂きます。
内覧も可能です!
是非お気軽にお問い合わせください。
■お問い合わせ:054-205-1212
他のおすすめ物件
チェックした物件