賃貸物件事業用
- 店舗
重飲食
軽飲食
物販
- [ こだわり条件 ]
- スモールオフィス・ショップ
物件番号054309
用宗の注目スポット『みなと横丁』!
みなと横丁 1階⑤区画
所在地静岡市駿河区用宗二丁目
合計50,000円
賃料50,000円
共益費込
物件概要
- 物件番号
- 054309
- 物件名
- みなと横丁
- 契約区画
- 1階⑤区画
- 所在地
- 静岡市駿河区用宗二丁目
- 最寄り駅
- JR「用宗」駅
- 交通
- 徒歩9分
- 賃貸条件
-
賃 料50,000円共益費込合 計50,000円敷金150,000円(賃料の3ヶ月)礼金無仲介手数料(賃料の1ヶ月+消費税)
- 面積
- 16.53㎡(5.00坪)
- 構造規模
- 鉄骨造亜鉛メッキ鋼板葺2階建
- 築年月
- 1974年10月
- 駐車場
- 有
- 本体設備
- 共用トイレ(1F)、来客用駐車場、共用物置、集合看板
- 各戸設備
- カウンター有
空調1基(有償譲渡にて引継ぎ可)
- 入居日・引き渡し
- 相談
- 備考
- ※賃貸保証会社加入義務有
・図面と異なる場合は現況優先
・近隣にお客様駐車場複数あり
向いている業態
飲食店
ロケーション
漁港目の前
海まで徒歩6分
海まで徒歩6分
近年、大きな注目を集めている街『用宗』。
_
_
実は現在、弊社CSA不動産が用宗で観光地開発を行っております。
_
実際、一棟貸し宿『日本色』 や、海の前というロケーションを活かしたオシャレなジェラートバー『 LA PALETTE』、港を目の前に富士山を望む風景と潮風が楽しめる100%天然温泉露天風呂『用宗みなと温泉』、様々な業種の店舗が入る商業施設『HUT PARK 用宗』など、市外・県外からお客様が来ています。
_
用宗は今後、これまで静岡市にいなかった新しいターゲットを獲得出来るマーケットになっていく事が予想され、CSA不動産では用宗を新たな出店エリアとしてご提案しております。
_
_
そんな用宗で人気スポットの一つである『みなと横丁』の募集です!
_
_
『みなと横丁』をご存知ない方のために少々ご紹介を。
_
このみなと横丁は約40年前から用宗に存在する古い横丁なんですが、2018年春に弊社が大胆にリノベーションをし、新たなテナントを誘致してオシャレに生まれ変わりました。
_
_
コチラがリノベーション前の外観。

かなり年季が入っていますが、 きっと昔は賑わっていたんだろうなぁという感じがどこか伝わって くる気がしませんか?
_
_
そして、コチラがリノベーション後の外観。全く新しいイメージに一新されました!

_
コテコテな横丁の感じではなく、 スタイリッシュでオシャレな雰囲気にしました。
横丁といえばサラリーマンや近所の酒好きが集まるイメージがあるかもしれませんが、コチラのみなと横丁は若い女性も来たくなる様なオシャレな横丁となっています!
_
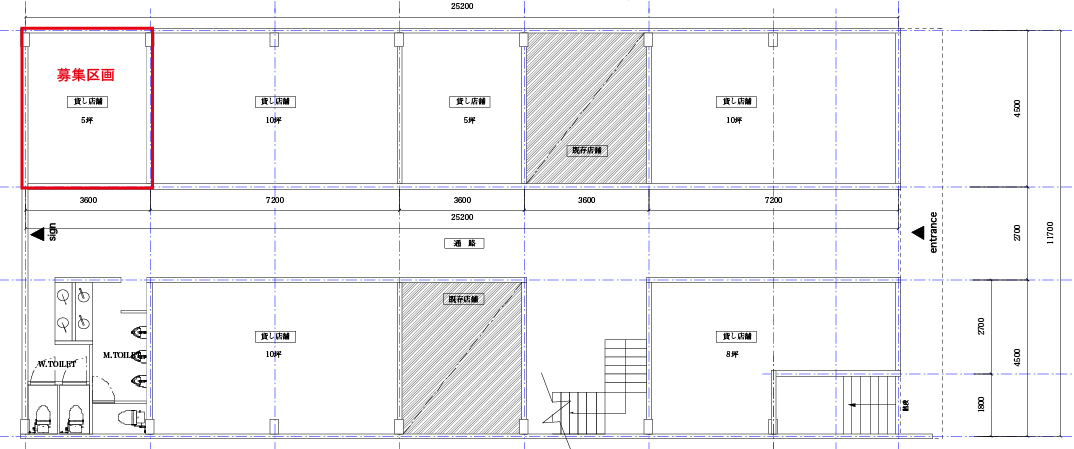
そんな『みなと横丁』の募集区画をご紹介します♪
今回の募集区画は1階です。
_
サイズも5坪とコンパクトサイズで、 新規独立の方にもオススメです。
お一人で営業するにもちょうどいい広さで、お客様との距離も近いので会話がはずみそうですね!
ぜひ、お気軽にお問い合わせください。
054-205-1212
_
他のおすすめ物件
チェックした物件