賃貸物件事業用
- オフィス
- [ こだわり条件 ]
- 駐車場あり
物件番号087201
1階駐車場付きの事務所物件です!
日ノ出ビル 1~3階
所在地静岡市葵区日出町7-7
合計770,000円
賃料770,000円
共益費込
物件概要
- 物件番号
- 087201
- 物件名
- 日ノ出ビル
- 契約区画
- 1~3階
- 所在地
- 静岡市葵区日出町7-7
- 最寄り駅
- 静岡鉄道「音羽町」駅
- 交通
- 徒歩5分
- 賃貸条件
-
賃 料770,000円共益費込合 計770,000円敷金4,200,000円(賃料の6ヶ月)礼金賃料の1ヶ月仲介手数料770,000円(賃料の1ヶ月+消費税)
- 面積
- 567.89㎡(171.78坪)
- 構造規模
- 鉄骨造4階建
- 築年月
- 1977年9月
- 駐車場
- 有
- 本体設備
- エレベーター
- 入居日・引き渡し
- 相談
- 備考
- ※仲介手数料は借主様より頂きます。
※賃貸保証会社加入義務有
※駐車場:縦列約4台分×2列 ※車種による
※使用面積は1階駐車場を含みます。
向いている業態
事務所
静岡鉄道「音羽町駅」から徒歩5分、JR静岡駅や静岡鉄道「新静岡駅」からも徒歩圏内で駐車場付きの好物件のご紹介です。
場所は国一からもアクセスしやすい「日出町」!!
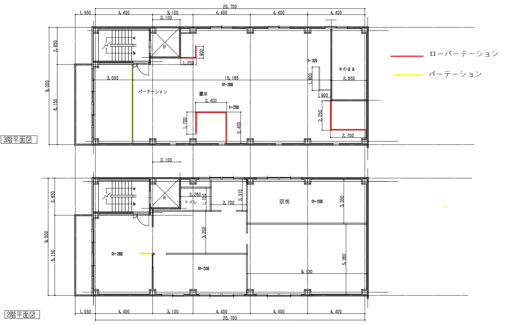
4階建てビルの1階から3階までの契約物件です。

静岡市の中心街まで徒歩圏内でありながら、1階が駐車場で縦列駐車なら最大8台まで置けます。(車種によります)

現在食品関係の会社さんが入居中で、2階はミーティングルーム、倉庫、厨房、会議室となっております。





続いて3階のご案内です。

エレベーターが付いているので、荷物の移動なども便利です。

現在応接室として使用している部屋は窓があって明るいです。

事務所スペースはレイアウトしやすい形です。

給湯室もあるので、日常使いはもちろん、来客のおもてなしにも使えますね!


お手洗いもそのままご利用できます。
事務所物件でこの立地でありながらこの好条件はなかなかありません!
気になる方はお気軽にお問い合わせください。
054-205-1212
他のおすすめ物件
チェックした物件