賃貸物件事業用
- 店舗
軽飲食
- [ こだわり条件 ]
- 居抜き / 郊外ロードサイド
物件番号086401
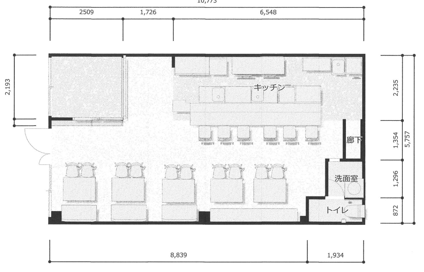
イタリアン居抜き物件です
本通鈴木様貸店舗 1階南側
所在地静岡市葵区本通10丁目11-1
合計165,000円
賃料165,000円
共益費無
物件概要
- 物件番号
- 086401
- 物件名
- 本通鈴木様貸店舗
- 契約区画
- 1階南側
- 所在地
- 静岡市葵区本通10丁目11-1
- 最寄り駅
- JR「静岡」駅
- 交通
- 車で9分
- 賃貸条件
-
賃 料165,000円共益費無合 計165,000円敷金450,000円(賃料の3ヶ月)礼金165,000円(賃料の1ヶ月)仲介手数料165,000円(賃料の1ヶ月+消費税)
- 面積
- 66.11㎡(19.99坪)
- 構造規模
- 鉄骨造
- 築年月
- 1982年12月
- 駐車場
- 有
- 本体設備
- 公営水道、公共下水、プロパンガス(ニチガス)
- 各戸設備
- 照明、空調、トイレ、厨房設備、カウンター、テーブル、椅子等
- 入居日・引き渡し
- 相談
- 備考
- ※仲介手数料は借主様より頂きます。
※賃貸保証会社加入義務有
※駐車場店舗前2台(賃料に含む)
※設備譲渡有償(イタリアン)
※重飲食応相談
※23時以降の営業応相談
※原状回復はオフィス仕様
向いている業態
軽飲食
ロケーション
本通沿い
本通10丁目バス停すぐ近くの1階、居抜きテナントのご紹介です。

バス停から徒歩1分、静岡駅から車で10分以内の駐車場2台付きで、
公共機関でもお車でも集客しやすい環境です。

現在はイタリアンレストランを営業されています。

約20坪の店内は木を基調とした温かい雰囲気で、カウンター席もあり、
お客様との距離も近くて会話がはずみそうですね。

カウンター内の設備もとてもきれいに手入れされています。



設備譲渡あり(有償)なので、すぐにお店を始めたい方にオススメです!!

洗面やトイレもキレイでそのままご利用いただけます。

気になる方は、お気軽にお問い合わせください。
054-205-1212
他のおすすめ物件
チェックした物件