賃貸物件事業用
- オフィス
- 店舗
- [ こだわり条件 ]
- 1フロア1テナント
物件番号086001
南口のおすすめオフィス!JR静岡駅徒歩8分の好立地!
森下ビル 5階
所在地静岡市駿河区森下町
合計308,000円
賃料308,000円
共益費込
物件概要
- 物件番号
- 086001
- 物件名
- 森下ビル
- 契約区画
- 5階
- 所在地
- 静岡市駿河区森下町
- 最寄り駅
- JR「静岡」駅
- 交通
- 徒歩8分
- 賃貸条件
-
賃 料308,000円共益費込合 計308,000円敷金840,000円(賃料の3ヶ月)礼金無仲介手数料308,000円(賃料の1ヶ月+消費税)
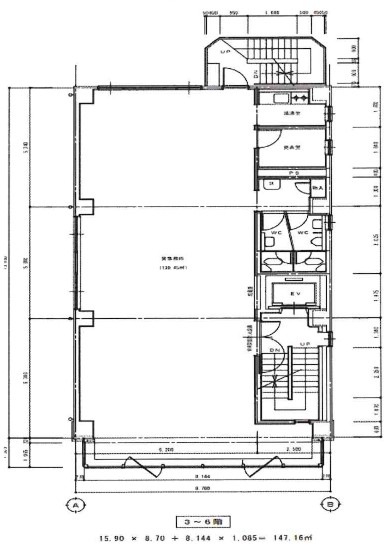
- 面積
- 130.45㎡(39.46坪)
- 構造規模
- 鉄筋コンクリート造6階建
- 築年月
- 1983年5月
- 駐車場
- 有
- 本体設備
- トイレ・洗面所・キッチン・ガス給湯器・EV・機械警備(セコム)
- 入居日・引き渡し
- 即
- 備考
- ※仲介手数料は借主様より頂きます。
※賃貸保証会社加入義務有
※駐車場1台空き有(縦列駐車)
向いている業態
オフィス
ロケーション
JR静岡駅徒歩約8分

JR静岡駅南口より徒歩8分、1階部分が駐車スペースで、荷物の搬入時も便利です。
スッキリとした街並みの中でコンビニも近くにあり、ビジネス環境には最適です。

40坪弱の広々オフィス。
ワンフロアに1区画で、独立性の高いビルです。
ぜひ一度内覧下さい。
054-205-1212
他のおすすめ物件
チェックした物件