賃貸物件事業用
- 店舗
スナック・パブ
- [ こだわり条件 ]
- 居抜き
物件番号083906
落ち着いたクラブ仕様の居抜き物件!
Ai1ビル(アイワン) 6A
所在地静岡市葵区昭和町6番地の2
合計415,888円
賃料415,888円
共益費無
物件概要
- 物件番号
- 083906
- 物件名
- Ai1ビル(アイワン)
- 契約区画
- 6A
- 所在地
- 静岡市葵区昭和町6番地の2
- 最寄り駅
- JR「静岡」駅
- 交通
- 徒歩8分
- 賃貸条件
-
賃 料415,888円共益費無合 計415,888円敷金2,268,480円(賃料の6ヶ月)礼金無仲介手数料415,888円(賃料の1ヶ月+消費税)
- 面積
- 78.12㎡(23.63坪)
- 構造規模
- 鉄骨造10階建
- 築年月
- 2007年11月
- 駐車場
- 無
- 本体設備
- 電気(日本テクノ)、ガス(静岡ガス)、水道(市営水道)、排水(公共下水)
- 各戸設備
- 居抜き
- 入居日・引き渡し
- 即
- 備考
- ※仲介手数料は借主様から頂きます。
※賃貸保証会社加入義務有。
※退去時原状回復
※火災保険(テナント総合保険)加入必要
※町内会費別途
向いている業態
スナック
クラブ
パブ
クラブ
パブ
ロケーション
江川町通り沿い
静岡駅から徒歩8分、江川町通り沿いの綺麗なビル、Ai1(アイワン)ビルの募集です。

外観は最新LEDによる光エレメントで夜は美しく輝きます。
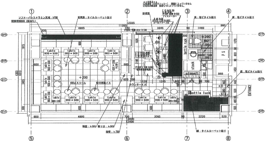
今回ご紹介するのは6階A区画。
23.63坪の居抜き物件です。
チェッカーフラッグの床とモノトーンな内装で落ち着いた雰囲気です。


カウンター席もあります。

内見も可能ですので、気になる方は是非お気軽にお問い合わせください。
054-205-1212
他のおすすめ物件
チェックした物件