賃貸物件事業用
- オフィス
- 店舗
美容
物販
医療
カルチャー
- [ こだわり条件 ]
- 1フロア1テナント / スモールオフィス・ショップ
物件番号055901
SALE!! 社長室付き!!新静岡セノバ至近!北街道沿いの物件です!
Hast Bill 4階
所在地静岡市葵区鷹匠一丁目
合計99,000円
賃料99,000円
共益費無
物件概要
- 物件番号
- 055901
- 物件名
- Hast Bill
- 契約区画
- 4階
- 所在地
- 静岡市葵区鷹匠一丁目
- 最寄り駅
- 静岡鉄道「新静岡」駅
- 交通
- 徒歩約3分
- 賃貸条件
-
賃 料99,000円共益費無合 計99,000円敷金270,000円(賃料の3ヶ月)礼金無仲介手数料99,000円(賃料の1ヶ月+消費税)
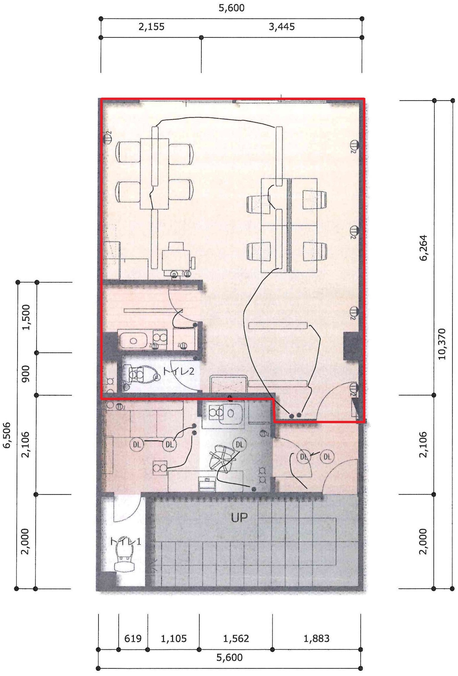
- 面積
- 49.49㎡(14.97坪)
- 構造規模
- 鉄筋コンクリート造5階建
- 築年月
- 昭和50年3月
- 駐車場
- 無
- 各戸設備
- トイレ、シンク、照明
- 入居日・引き渡し
- 即
- 備考
- ※仲介手数料は借主様から頂きます。
※賃貸保証会社加入義務有
※オーナー様より内装費補助有(応相談)
※フリーレント相談可
※電気代、水道代は借主負担
※社長室利用の場合は別途費用等の相談が必要
※仲介会社さんへADの相談承ります!!
向いている業態
小規模事業主様
社長室付き事務所をお探しの方
社長室付き事務所をお探しの方
ロケーション
北街道沿い
新静岡セノバにも徒歩約3分、交通量も多い北街道沿いのテナントビルです。
外観がおしゃれで入りやすい雰囲気のビルです。

募集区画は4階。木目調の階段を上って頂きます。

2026年1月に改装工事が終了し、事務所仕様となりました!


社長室も利用可能です!

社長机

打ち合わせスペース

トイレも新品です!

改装後のキレイな事務所で開業するチャンスです!!
こちらの立地でこの賃料は大変魅力的です。ぜひお問い合わせ下さい。
■お問い合わせ
054-205-1212
他のおすすめ物件
チェックした物件