売買物件事業用/居住用
物件番号b244031
用宗駅まで徒歩3分! 広々駐車場付き!!
用宗四丁目 中古住宅
所在地静岡市駿河区用宗四丁目820、819-1
価格1,550万円 消費税 込
物件概要
- 物件番号
- b244031
- 物件名
- 用宗四丁目 中古住宅
- 所在地
- 静岡市駿河区用宗四丁目820、819-1
- 交通
- JR「用宗駅」から徒歩3分
- 条件
-
価格1,550万円消費税込仲介手数料577,500円
- 土地
-
土地面積公簿 323.56㎡(97.88坪)用途地域近隣商業地域建ぺい率80%容積率300%
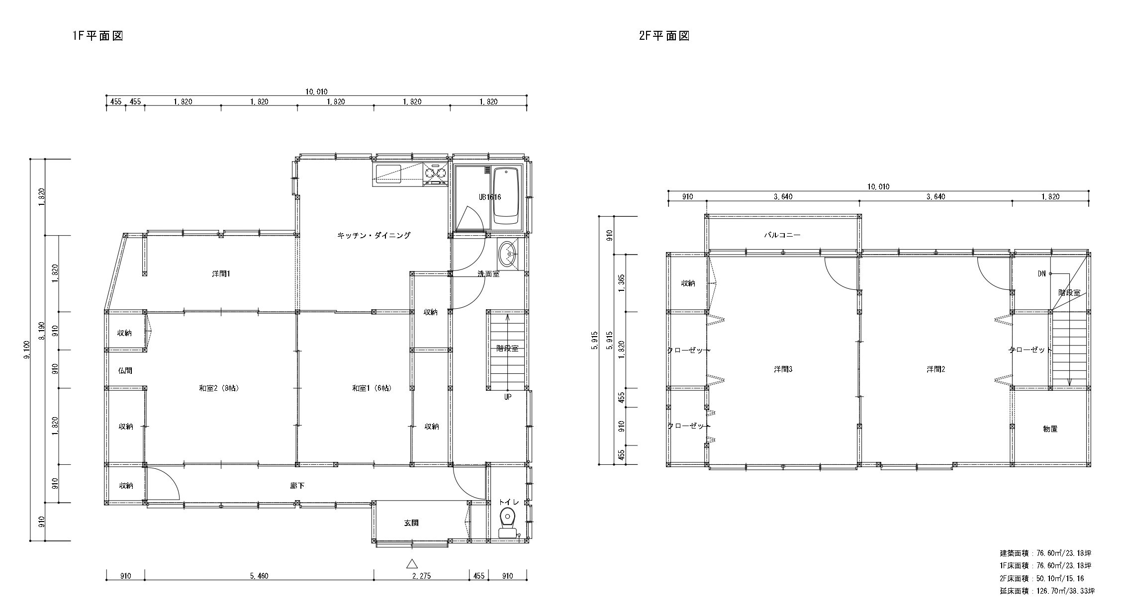
- 間取り
- 5SDK
- 間取り内訳
- 1階:洋室4帖、6帖和室、8帖和室、DK、2階:洋室13帖✕2+物置
- 建物面積
- 129.07㎡(39.04坪)
- 構造規模
- 木造瓦葺2階建
- 築年月
- 1972年12月
- 駐車場
- 有
- 設備
- 公営水道、公共下水道、プロパンガス
- 小学校
- 長田南小学校
- 中学校
- 城山中学校
- 備考
- ・現況有姿
・公募売買
ロケーション
JR「用宗駅」から徒歩3分
近年人気の用宗エリアはJR静岡駅から用宗駅まで電車でたった7分、さらに東名高速道路のI.Cへも車で約10分で、市外・県外からのアクセスが良い街です。
今回ご紹介するのは「用宗駅」から徒歩3分の中古住宅です。

目の前には広々駐車場があり、現在一部駐車場を賃貸中のため賃貸収入があります。
間取りは5SDKです!
玄関に大きなシューズボックスがあるのも嬉しいポイント!

1階は和室が2室と洋間1室とDKがあります。


収納も多いので、お部屋がスッキリ使えそうです。
和室2部屋に沿って、長い廊下があります。

キッチンも窓があり、とても明るいです。

お風呂とトイレも1階にございます。

お風呂はレトロ感たっぷりのタイル仕上げです。

続いて2階のご紹介です。

2階は洋間2室と納戸があります。


各お部屋にクローゼットがあり、尚且つ納戸もあるので収納率バツグンです!


日当たりの良いバルコニーでお洗濯物なども気持ちよく干せそうですね!

天井には梁もあり、古き良き日本家屋の雰囲気が盛りだくさんの物件です!
弊社は仲介だけでなく、古民家のリフォーム実績も多いので、リフォームのご相談も承ります!
気になる方はお気軽にお問い合わせください!!
054-205-1212
他のおすすめ物件
チェックした物件